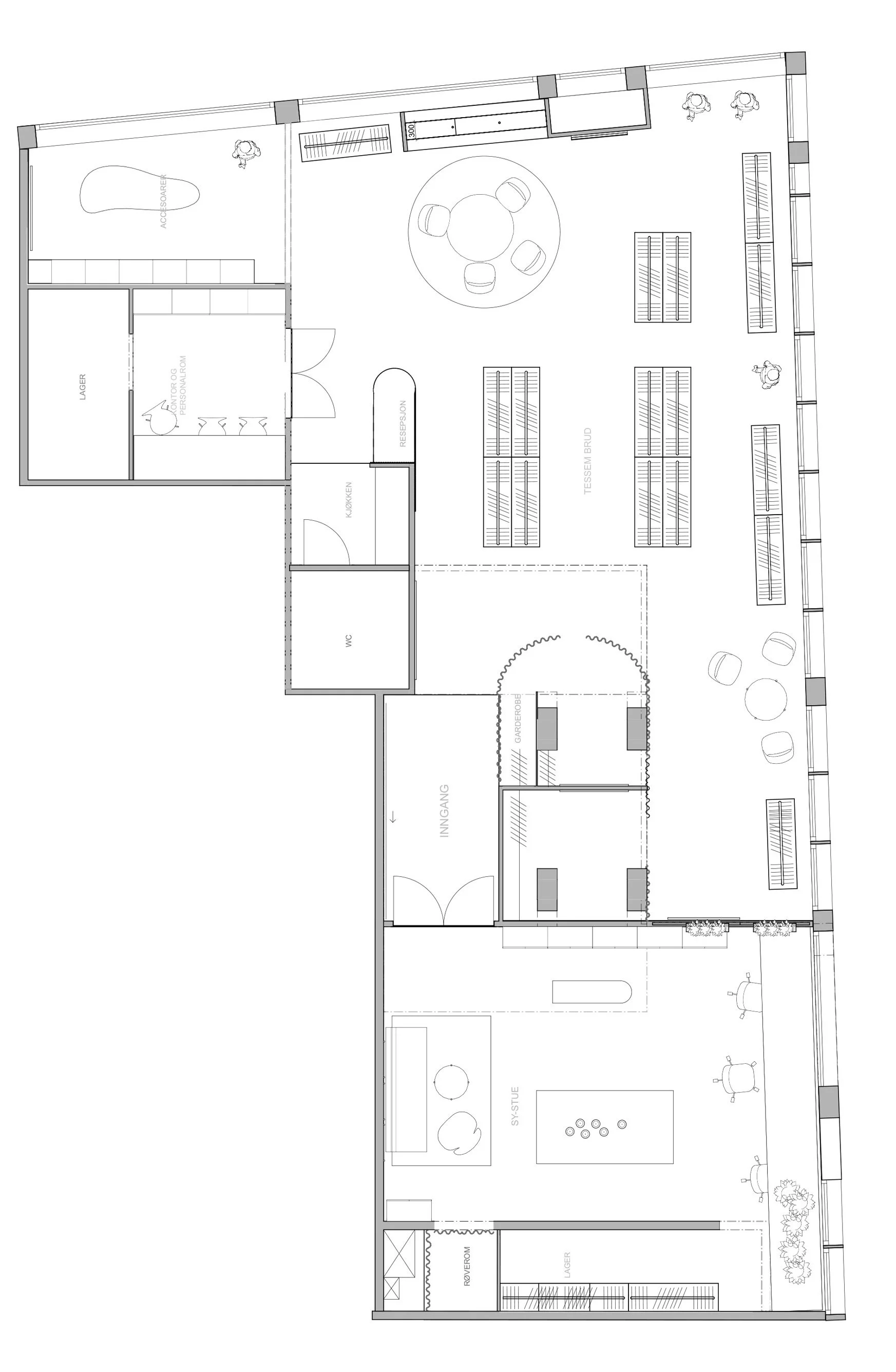
En av norges største brudesalonger flyttet inn i nye lokaler i hjertet av Trondheim sentrum. De åpne lokalene ble ombygget til å huse systue, salong, kontor og lager.

Kundeopplevelse ble fokus og det ble lagt vekt på god kundeflyt, funksjonelle soner, skreddersydde løsninger, lysinnslipp og robuste materialer. Det har skapt et varmt og velkomment uttrykk med materialer som eik, marmor, velour kombinert med glass og stål.

Ombygging og renovering av butikklokaler og systudio

STED: Nordre Gate, Trondheim STØRRELSE: 208 kvm KATEGORI: Næringslokaler KUNDE: Privat STATUS: Ferdigstilt 2020 FOTOGRAF: Therese Samuelsen

Previous
Previous

Leilighet Lilleby

Next
Next

Bad enebolig Ranheim